
通勤・通学やお買物に便利な各線「天王寺駅」徒歩約5分の好立地◆天王寺シンボルタワーの角部屋4LDK◆充実の共用設備で快適便利な暮らし♪
目次
「シティタワーグラン天王寺」の物件概要
| 価格 | 11,300万円(税込) |
|---|---|
| 所在地 | 大阪府大阪市阿倍野区松崎町2丁目 |
| 最寄り駅 | 大阪メトロ御堂筋線天王寺駅 徒歩7分 大阪環状線 徒歩7分 |
| 築年月 | 2007年02月 |
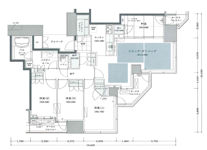
| 間取 | 4LDK |
| 構造 | 鉄筋コンクリート造 43階建ての13階 |
| 土地権利 | 所有権 |
| 土地持分 | |
| 駐車場 | 有り有料 28000円 40台可 |
| 専有面積 | 92.7㎡(28.04坪) |
| 総戸数 | 246戸 |
| 向き | 南 |
| バルコニー | 12.32㎡ |
| 管理費 | 25,030円 |
| 建物現況 | 空室 |
| 積立基金 | |
| 積立金 | 23,000円 |
| 施工会社 | 奥村組 |
| 管理会社 | |
| 管理形態 | 常駐 全部委託 |
| 間取明細 | |
| 都市計画 | 市街化区域 |
| 用途地域 | 商業地域 |
| 建ぺい率 | |
| 容積率 | |
| 引渡時期 | 即引き渡し可能 |
| 取引態様 | 専属 |
| 備考 |
設備
ガス:都市ガス
水道:公営水道
汚水:公共下水
雑排水:公共下水
※図面と現況が異なる場合は現況を優先させていただきます。
\ まずはお気軽にご相談ください /
